Skip to main content
Home
About
Projects
Testimonials
Contact
Home
About
Projects
Testimonials
Contact
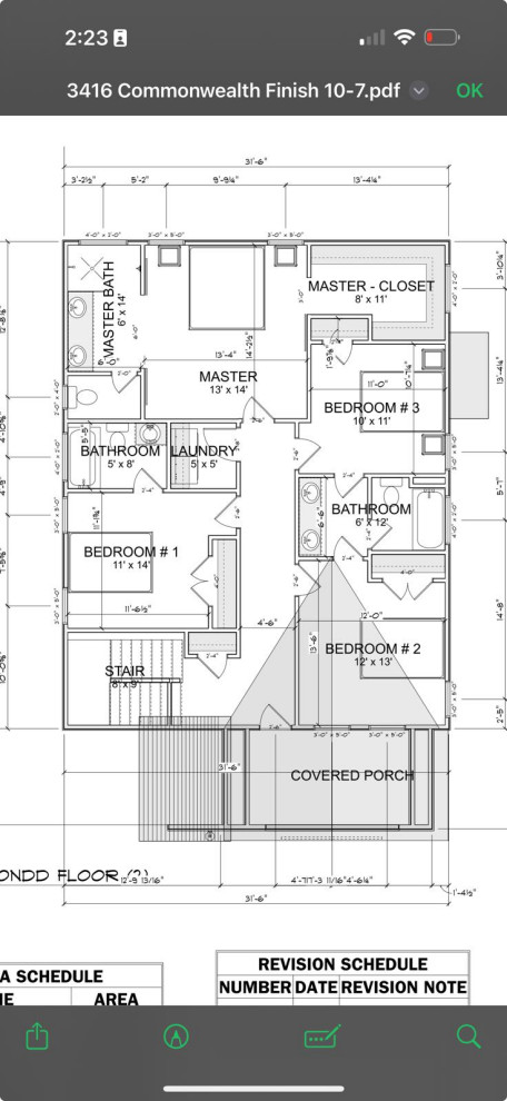
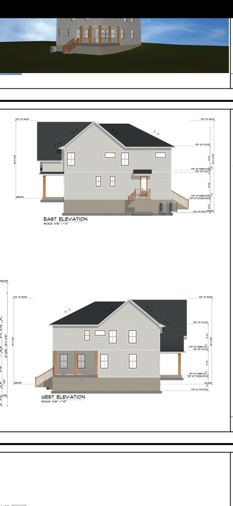
3416 Commonwealth